Vectorisation de plans
Qu'est-ce qu'un plan vectorisé ?
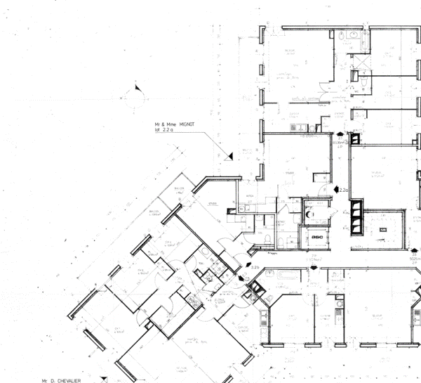
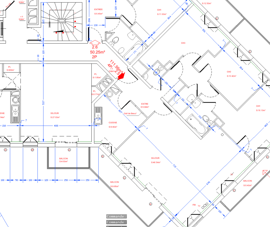
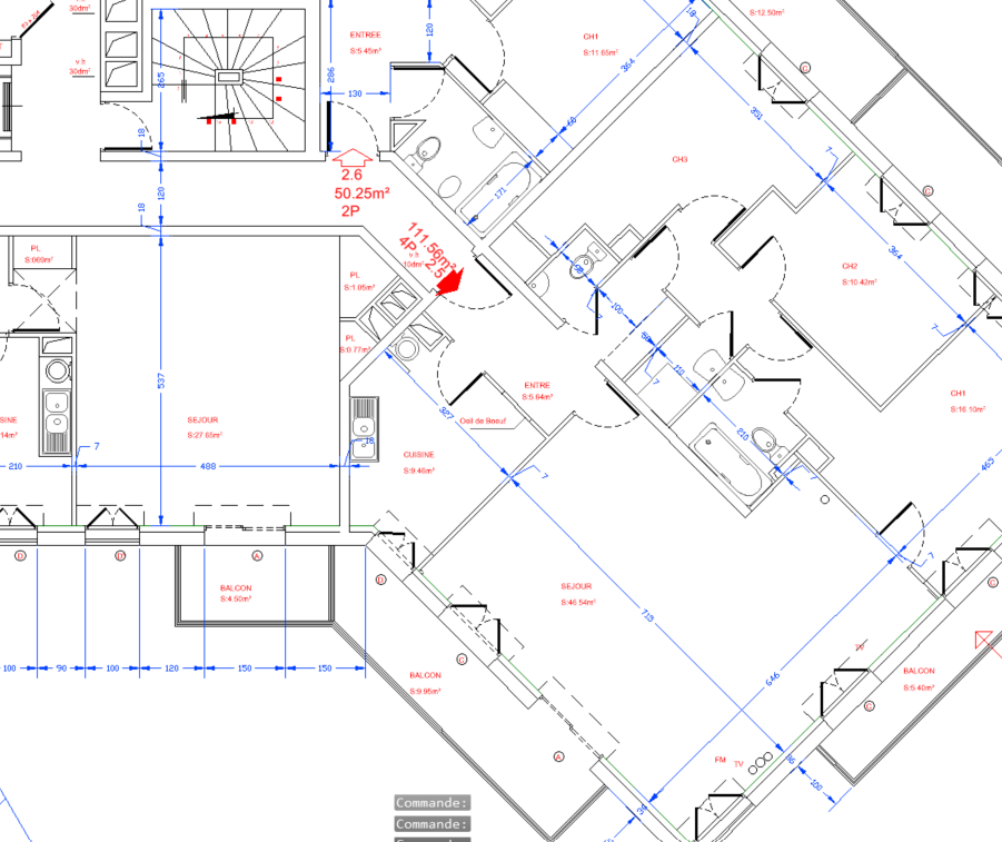
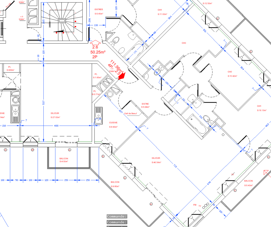
Un plan vectorisé est un fichier numérique contenant des informations modifiables. Sur le même principe qu'un fichier texte (Word par exemple), les schémas, cotes, dimensions présentes sur le plan peuvent être retravaillées, modifiées, complétées.
Les plans vectorisés sont majoritairement utilisés par les architectes et autres professionnels de bâtiment, lors de travaux.
Moins intuitif, mais tout aussi courant, la vectorisation de plans sert aussi aux industriels pour travailler sur des machines plus anciennes dont les données n'existent que sur papier. On appelle cela le rétrofit.
En terme de format de fichier, vous pouvez reconnaitre rapidement une fichier vectorisé par son format : .DWG ou .SVG.
A noter que des fichiers en .PDF peuvent aussi être vectorisés, mais non manipulables.

Comment vectoriser un plan papier ?
Pour vectoriser un plan en papier ou calque vers un fichier .DWG, il y a deux étapes :
Etape 1 : Numériser le plan.
LNSE numérise votre plan vers un format numérique image (.JPG, .PDF, .TIF suivant contenu du fichier).
Cette étape nécessite un savoir-faire important. En effet, c'est ici que l'on converti le physique vers numérique et qui dit conversion dit perte potentielle d'informations qui ne se retrouveront jamais sur le plan vectorisé final.
Colorimétrie, contraste, exposition sont autant de paramètres à travailler à la main, afin d'avoir l'image la plus propre possible.
Pour en savoir plus, c'est ici.
Etape 2 : Vectoriser l'image.
Votre fichier numérique est prêt, il est tant de le vectoriser. Il y a encore quelques temps, cette étape se faisait à la main.
Intégration du fichier en fond de calque AutoCAD, retraçage manuel, ajout des couleurs et particularités enfin de manipulation. C'était fastidieux, avec un risque d'oubli et un cout important.
Mais l'avènement d'outils IA, nous permettent de simplifier tout cela. Avec un dataset important, les différents types de traits (murs, cotes, isolation, coupes, etc...) sont pré identifiés. Nos opérateurs contrôlent et valident les vectorisations effectuées et apportent au besoin des corrections qui réentraîneront notre IA.



Faites appel à des professionnels pour vectoriser vos plans avec une qualité optimale.